skip to main
|
skip to sidebar
Home
Kiến trúc - Xây dựng
Revit Api
Thư viện
Liên hệ
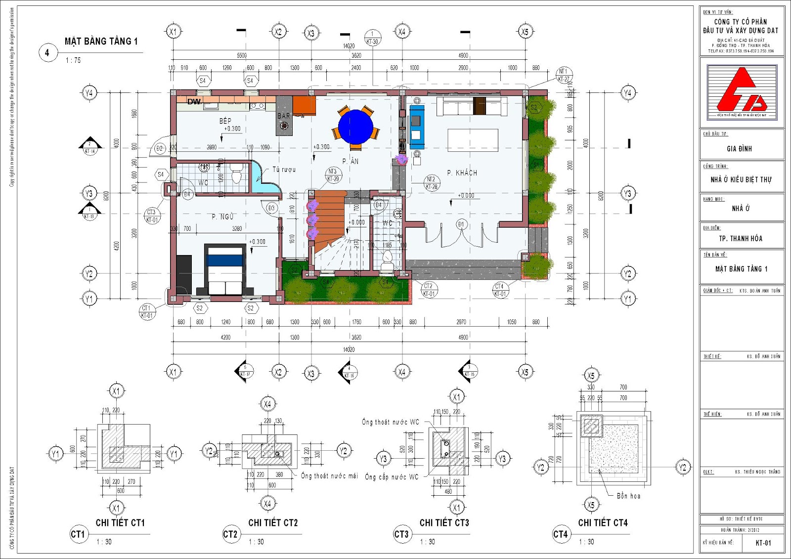
Mẫu nhà biệt thự phố số 1
Khu nhà được xây dựng tại khu Làng Hạc, Tp. Thanh Hóa
Người đăng:
Unknown
vào lúc
03:49
Nhãn:
Thiet ke
0 nhận xét:
Đăng nhận xét
Bài đăng Mới hơn
Bài đăng Cũ hơn
Đăng ký:
Đăng Nhận xét (Atom)
Danh mục
Revit Api
(4)
Thiet ke
(22)
Thu vien
(1)
Bài viết
►
2015
(3)
►
tháng 4
(2)
►
tháng 3
(1)
►
2014
(8)
►
tháng 9
(1)
►
tháng 5
(2)
►
tháng 3
(4)
►
tháng 2
(1)
▼
2013
(18)
►
tháng 11
(1)
►
tháng 7
(4)
►
tháng 4
(3)
▼
tháng 3
(10)
Sacombank Phan Chu Trinh
Sacombank Bỉm Sơn
Bến xe quán lào Yên Định
Văn phòng - khách sạn
Công sở xã Yên Hùng
Nhà ở phố huyện
Nhà phố 5.5x20m - 2.5 tầng
Biển quảng cáo 20x10m
Mẫu nhà biệt thự phố số 1
Mẫu nhà vườn hiện đại số 1
Được tạo bởi
Blogger
.
Templatemaxs.com
Designed by:
U-sup blog
Powered by by:
Blogger
0 nhận xét:
Đăng nhận xét